施工事例

A様邸(男鹿市)
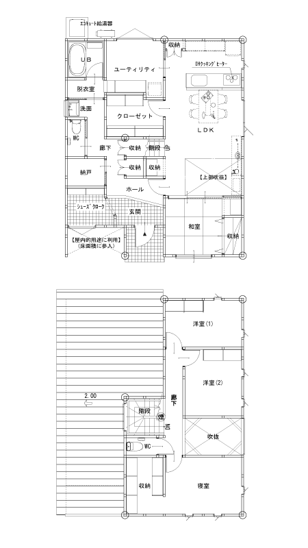
家事楽導線と趣味を楽しむお家。
玄関SICには趣味の釣り具収納や、釣り用の冷凍庫も置けるように計画しました。
和室は引き戸を開けると、リビングとの繋がりが生まれ開放的にも使用できます。
ワークスペースとしてカウンターを設けましたが、将来的にはお仏壇を置くスペースとして活用できます。
大容量のランドリールームは、キッチンの真横に配置することで家事の同時進行が数歩で叶います。
ランドリールームと脱衣室は繋がっていて、出た洗濯物やタオル・下着類などのやりとりが楽に。
干して乾いた洗濯物は、畳まずにそのまま隣りのファミリークローゼットへ収納できます。
ファミリークローゼットを中心に、ぐるっと回遊できる導線になっています。
- 敷地面積:293.32㎡
- 建築面積:81.98㎡
- 延床面積:120.89㎡
- 構造:SW工法
- 用途:住宅
- 建築年月:2025年5月
- Q値(温熱性能・熱損失係数):1.16W/(㎡・K)
- UA値(外皮性能・外皮平均熱貫流率):0.34W/(㎡・K)
- ηAC値(外皮性能・冷房期の平均日射熱取得率):0.9
- C値(機密性能・相当隙間面積):0.39㎠/㎡
