施工事例

K様邸(由利本荘市)
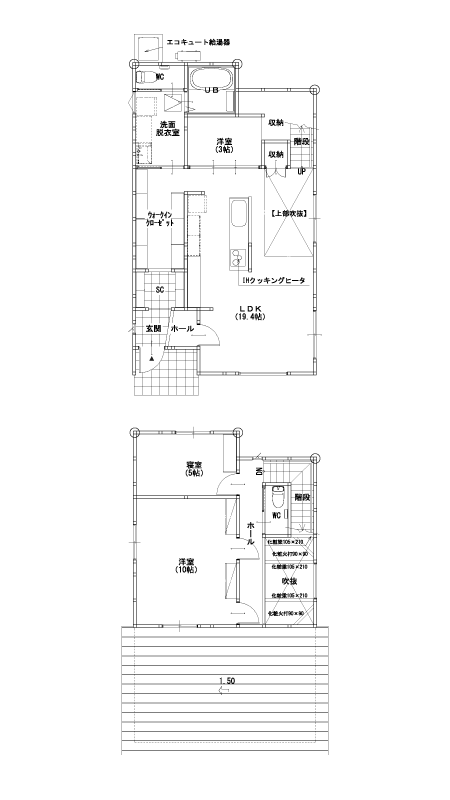
玄関からシューズクローク、ファミリークローゼット、洗面所までを一直線につないだ間取り。
ファミリークローゼットは、帰宅後すぐに荷物や上着をしまえる「家族ロッカー」のような使い方ができ、リビングが散らかりにくくなります。
お出かけの際も、着替え→荷物を取る→靴を履く、という流れがスムーズ。
回遊できる動線計画で、家の中をぐるっと移動できます。
階段下にはヌックスペースを設け、お子さんのおもちゃ収納を兼ねた隠れ家のような場所に。
洗面脱衣室はランドリールームも兼ねた3帖を確保し、洗濯後に移動せずそのまま干せるように計画しました。
乾いた洗濯物は、隣接するファミリークローゼットへそのまま収納できる家事ラク動線です。
キッチン背面には、造作のワークスペースを設置。
リビング学習ができ、家族の目が届く場所で遊んだり勉強したりできる安心のスペースになっています。
- 敷地面積:408.58㎡
- 建築面積:67.07㎡
- 延床面積:100.19㎡
- 構造:SW工法
- 用途:住宅
- 建築年月:2025年8月
- Q値(温熱性能・熱損失係数):1.20W/(㎡・K)
- UA値(外皮性能・外皮平均熱貫流率):0.36W/(㎡・K)
- ηAC値(外皮性能・冷房期の平均日射熱取得率):1.0
- C値(機密性能・相当隙間面積):0.42㎠/㎡
